Opis nieruchomości
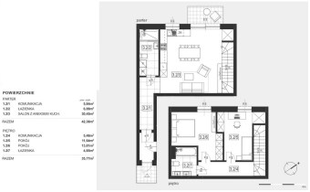
Do sprzedania apartament II- poziomowy w Oborze w zabudowie szeregowej o pow. 78,15m2 z ogrodem i miejscem postojowym. Lokal posiada na parterze salon z aneksem kuchennym, łazienkę oraz wyjście na ogród od strony południowej. Na piętrze zlokalizowane są 2 sypialnie oraz łazienka z WC. Nieruchomość sprzedawana w stanie deweloperskim. Cena zawiera pompę ciepła, ogródek oraz m. postojowe. Nieruchomość zlokalizowana blisko lasów i natury z prywatna drogą dojazdową. Lokale gotowe do oddania.Kwota sprzedaży 656460
Kontakt: 607848114
Nota prawna
Opis oferty zawarty na stronie internetowej sporządzany jest na podstawie oględzin nieruchomości oraz informacji uzyskanych od właściciela, może podlegać aktualizacji i nie stanowi oferty określonej w art. 66 i następnych K.C.Szczegóły



